プレステージ北名古屋   モデルハウスがもうじき完成

愛知県北名古屋市宇福寺天神292番2 戸建て ( 北名古屋市 / 名鉄犬山線西春駅 )

名古屋市近郊、北名古屋市宇福寺天神に、限定1棟のモデルハウスが誕生します!

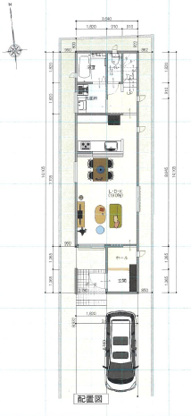
●抜群の解放感と採光:南道路に5.4m接道。日中はたっぷりの自然光が差し込み、明るいリビングで家族団らんの時間がすごせます。

●ゆとりのカースペース:並列2台駐車を確保。日常の送り迎えやお出かけもスムーズです。

●毎日の生活を支える交通利便性:名鉄犬山線「西春」駅まで2.5㎞ 通勤・通学に便利な主要駅。バス利用や自伝者でのアクセスも可能です。 JR東海道線「稲沢」駅まで2.7㎞ 行先に合わせて使い分けができるwアクセス

物件概要

販売価格
所在地
愛知県北名古屋市宇福寺天神292番2
沿線
最寄り駅
名鉄犬山線「西春」駅までおよそ2.5㎞(徒歩約32分)
土地面積
115.22㎡(34.85坪)
ポイント
  • :粟島小学校
  • 戸建て
  • ファミリー向け

物件管理番号:  情報更新日:2025.11.09  次回更新予定日:2025.01.23

お問い合わせはこちら

物件概要

種別 戸建て
所在地 愛知県北名古屋市宇福寺天神292番2
交通 名鉄犬山線「西春」駅までおよそ2.5㎞(徒歩約32分)
その他交通 北名古屋市コミュニティバス「粟島小学校北」停までおよそ70m(徒歩約1分)
土地面積 115.22㎡(34.85坪)
建物面積 87.77㎡(26.55坪)
私道面積 なし
土地権利 所有権
セットバック なし
引き渡し時期 相談
用途地域 第1種住居地域
建ぺい率/容積率 指定建蔽率60% 指定容積率200%
地目 宅地
都市計画 市街化区域
販売区画 1区画
備考 名古屋市中心部にもアクセスの良い北名古屋市宇福寺天神におきまして、限定1棟のモデルハウスを販売いたします。価格は現在調整中。できるだけお求めやすい価格をご提示いたします。
南向きで明るい自然光が入るLDKは広々とした19帖で、家族がゆったり過ごせます。
取引態様 売主
情報更新日 2025.11.09
次回更新予定日 2025.01.23

Contact お問い合わせ

  • STEP1 入力
  • STEP2 確認
  • STEP3 完了

    お名前必須
    ふりがな 任意
    電話番号 必須
    郵便番号 任意
    住所 必須
    物件の所在地 任意
    メールアドレス 必須
    備考欄 任意

    【個人情報の取扱いについて】
    本フォームからお客様が記入・登録された個人情報は、資料送付・電子メール送信・電話連絡などの目的で利用・保管し、第三者に開示・提供することはありません。詳しくは、プライバシーポリシーをご覧下さい。

    上記フォームに送信できない場合は、お手数ですが0120-47-3441までご連絡ください。

    エリアを選択
    • 愛知県

    • 岐阜県

    種別を選択
    検索する